Page suivante
Page précédente
Clichy (92110)

Local commercial 105 m²

3 100 € / mois HT - HC*
Réf 2025-02-5-1

**À LOUER : Local Commercial de 105 m² à Clichy, Rue de Neuilly - Emplacement de Choix**

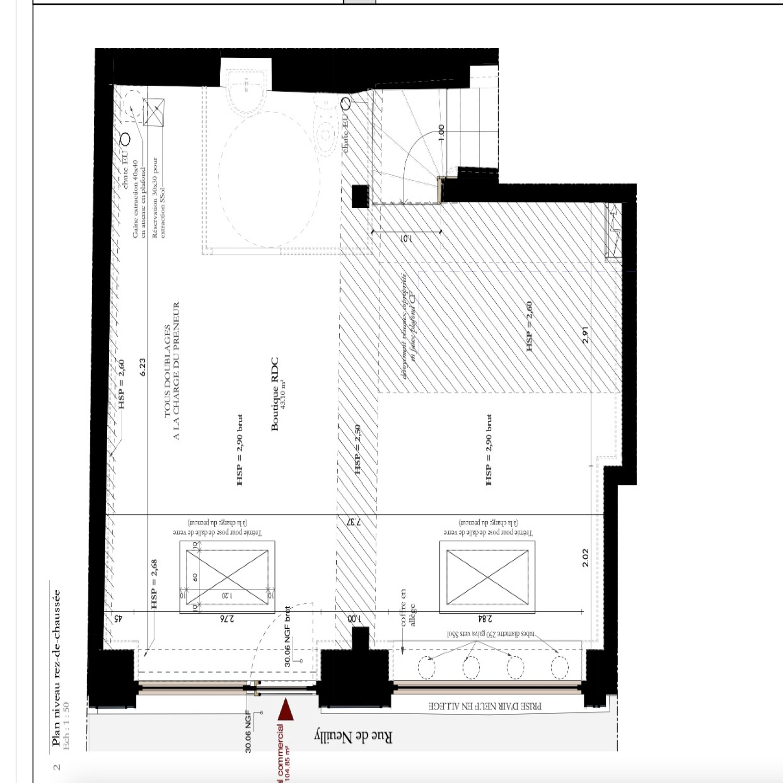
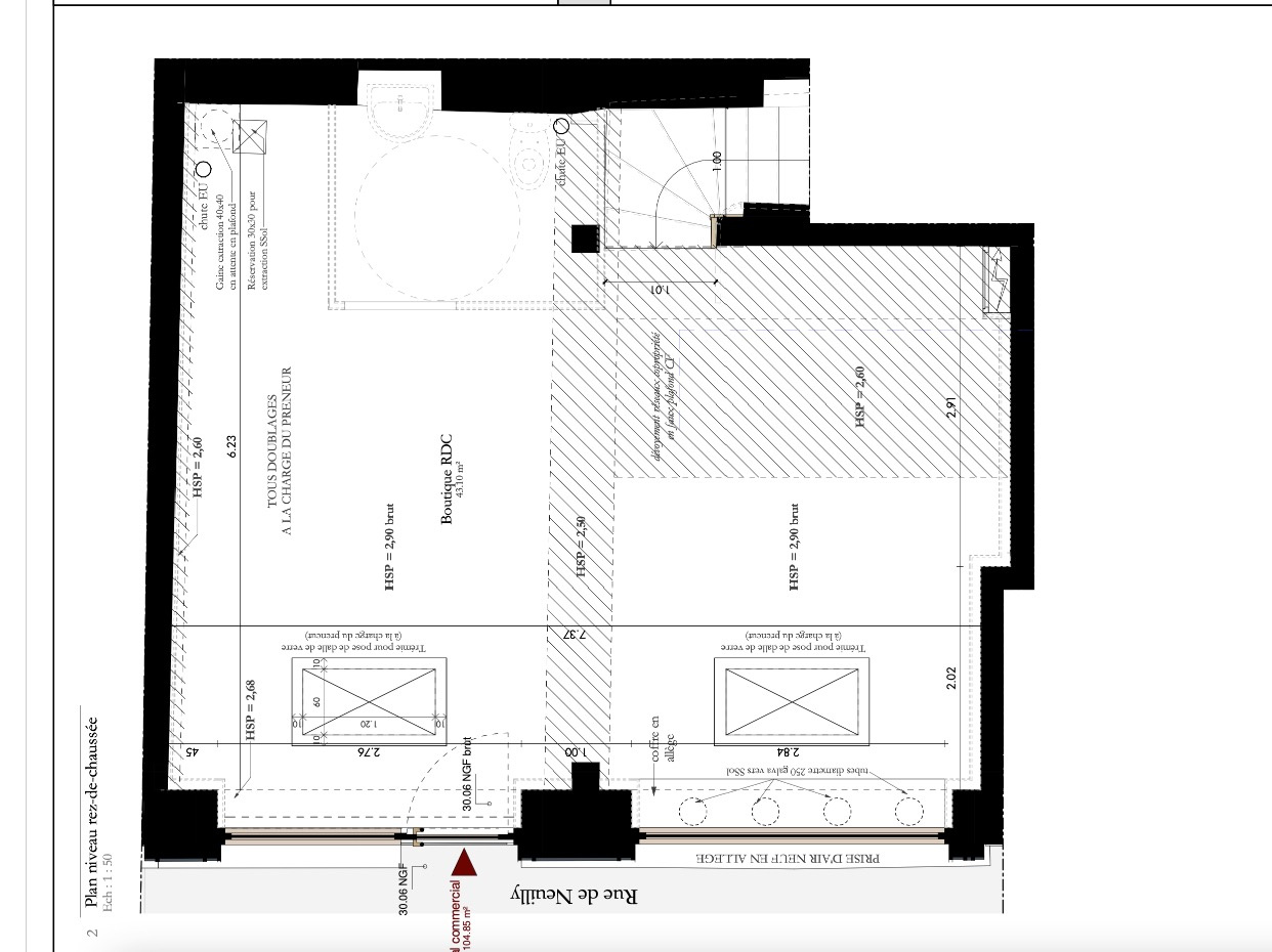
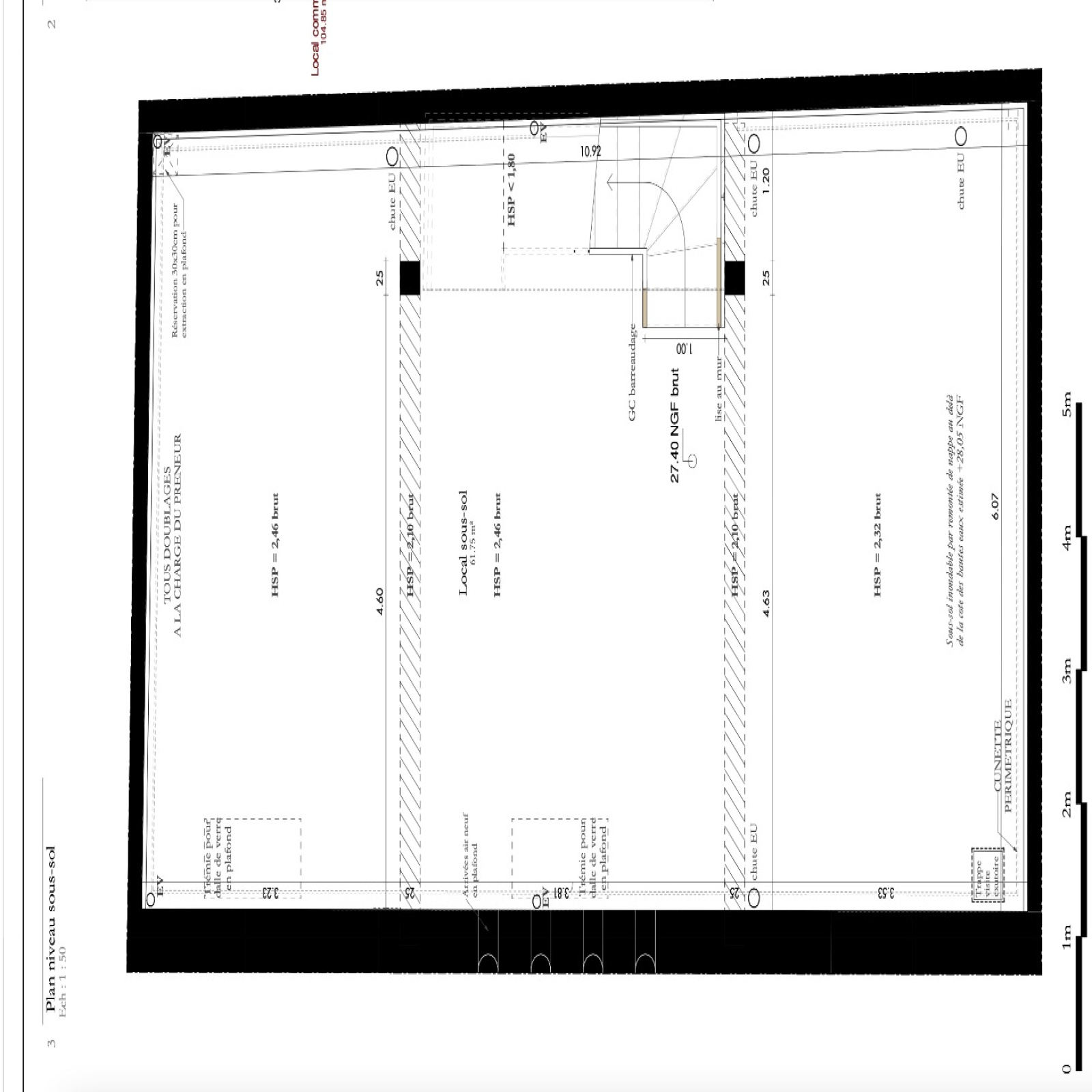
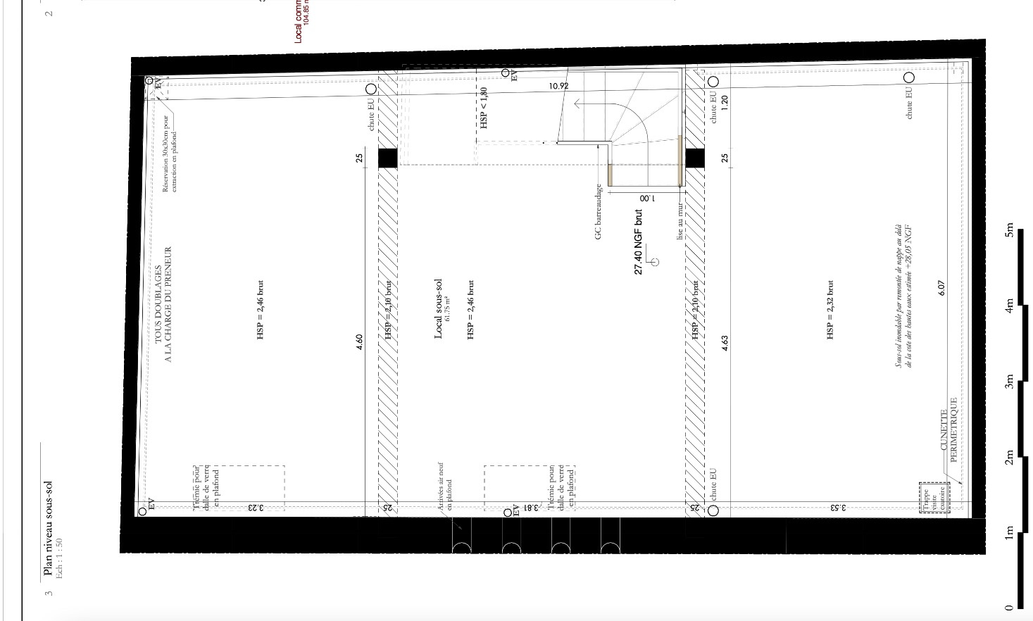
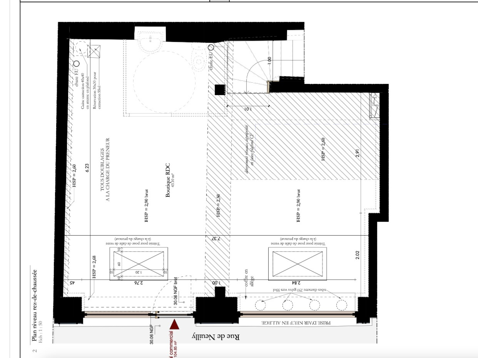
Opportunité rare à saisir dans le secteur commerçant de la rue de Neuilly à Clichy ! Nous vous proposons ce local commercial de 105 m² idéalement situé au rez-de-chaussée d'un immeuble magnifiquement rénové. Ce bien offre une surface de 45 m² au rez-de-chaussée, complétée par 60 m² au sous-sol, bénéficiant d'un éclairage zénithal et d'un escalier d'accès direct d'une largeur de 1 mètre.

Ce local de charme dispose d'une superbe façade en bois brut, d'une largeur de 6 mètres, garantissant une excellente visibilité et un attrait esthétique indéniable dans un environnement très dynamique.

**Caractéristiques principales :**
- Superficie totale : 105 m² (45 m² au rez-de-chaussée, 60 m² en sous-sol)
- Éclairage zénithal au sous-sol
- Escalier d'accès direct de 1 mètre de large
- Largeur de façade : 6 mètres
- Superbe façade en bois brut
- Situé dans un immeuble magnifiquement rénové
- Libre de toute occupation

-Extraction diam 35 au sous sol ou RDC. 

**Prix de location : 3300€ HT HC. 

Honoraires d'agence : 10000€ HT

Ne manquez pas cette occasion unique d'implanter votre activité au cœur d'un quartier en pleine effervescence. Pour plus d'informations ou pour organiser une visite, contactez-nous dès maintenant.

Faites de ce local votre nouvelle adresse !

Bilan énergétique

Diagnostics énergetiques
A propos de ce bien Caractéristiques de ce bien
  • Surface 105 m²
  • construit en 2024
  • Chauffage individuel : autre (autre)

Financier

Informations financières
Loyer HT 3 100 € / mois
Prix net vendeur 550 000 €
Honoraires HT charge locataire 10 000 €
Dont état des lieux Non renseigné
Dépot de garantie Non renseigné

Composition

Composition de ce bien

Etage -1

  • salle 62 m²

Rez-de-chaussée

  • accueil 44 m²

Autour du bien

Découvrez le quartier
STVDA Immobilier Agence

* HC : Hors Charges

* HT : Hors Taxes